Location Entrepôt MIONS
1 500 € Hors Charges - 237 m2 - Réf. GL5

Location Entrepôt
MIONS
1 500 € Hors Charges
Loyer : 1500 € par mois
Charges : 40 € (Prévisionnelles mensuelles avec régularisation annuelle)
Dépôt de garantie : 4 500 €
Honoraires à charges locataire : 3 240 € TTC
  • 237 m2

Local d'activité 237m²

A LOUER

A Mions, à 5 minutes l'A46, dans la zone d'activité Les Prunus
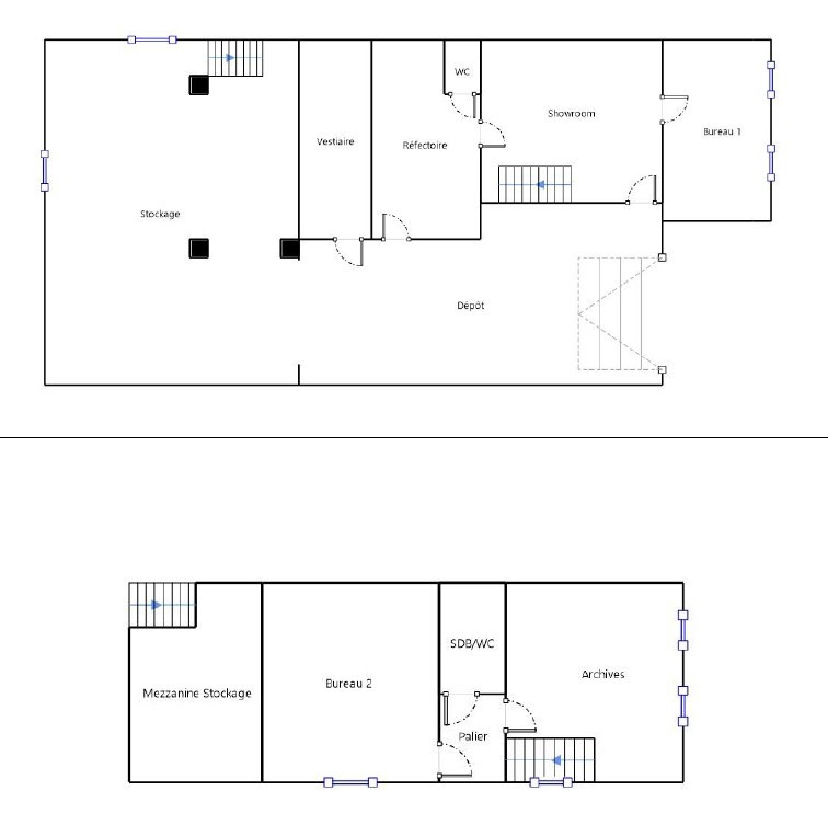
Local d'activité d'environ 237m², comprenant 137m² de dépôt et stockage, et 100m² de bureaux et vestiaires
Espace entrepôt : dépôt + mezzanine de stockage.
Espace bureaux : au RDC : 1 vestiaire, 1 réfectoire, 1 WC, 1 showroom/bureau, 1 bureau / accueil climatisé ; au R+1 : 1 bureau, 1 salle de bain avec wc, 1 salle d'archives.
Extérieur : grand espace de stationnement devant le local (5/6 VL)
Rideau métallique, portail coulissant (non motorisé)
Raccordé à la fibre
** Activités automobiles non autorisées**

- Bail commercial 3/6/9
- Loyer annuel 1500*12= 18.000€ HT/HC
- Loyer payé mensuellement
- Charges 40 HT/mois
- 3 mois de dépôt de garantie HT/HC, soit 4500€
- Taxe foncière : environ 750€ HT/an
- Caution personnelle du gérant
- Honoraires : 15 % HT du loyer annuel HT/HC à la charge du preneur

Les informations sur les risques auxquels ce bien est exposé sont disponibles sur le site Géorisques : www.georisques.gouv.fr
Pour plus de renseignements, me contacter au 06-77-81-92-10 ou 06-74-28-86-74 ou 04-74-01-33-58
  • Référence : GL5
  • Ville : MIONS
  • Transaction : Location
  • Type de bien : Entrepôt
  • Prix HC : 1 500 €
  • Charges annuelles : 480
  • Surface : 237 m2
Performance énergétique (en KWh/m2/an)
Dpe
Performance climatique (en Kg éq CO2/m2/an)
Ges
Montant estimé des dépenses annuelles d’énergie pour un usage standard : année de référence - de 0€ à 0€
%
%

Vos mensualités

*apport calculé sur une base de 20%

Informations non contractuelles, fournies à titre indicatif
69 - Rhône
Montant En % du prix du bien
Emoluments notaire %
Copies & formalités notaire 800 %
Total notaire %
Droits de mutation 5.80%
Publicité foncière 0.10%
Debours 400 %
TVA (sur part notaire) %
Total %
Informations non contractuelles, fournies à titre indicatif
Contactez-nous
* champs obligatoires
Biens similaires
Nous contacter
Voir le téléphone
AM Concept Immobilier

8 rue Georges Polossat
69720 Saint-Laurent-de-Mure

Nous suivre sur les réseaux sociaux :

0
  • 0